立即预约设计师:

您已预约成功,我们会在24小时内与您取得联系。感谢您关注居然乐屋装饰,祝您生活愉快!
专业设计师为您量身定制

免费获取装修报价

杨小红 鲁能7号院现代121~180平米
| 楼盘名称:鲁能7号院 | 案例风格:现代 | 案例户型:三居/四居 | 
| 户型面积:121~180平米 | 造价:1.00 | 所在城市: | 
| 服务店面:顺义店 | 设计师:杨小红 | 施工工长:某 | 
客厅

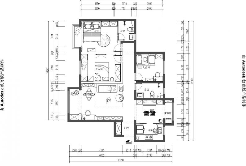
设计思路:业主家一家五口,两个老人一对夫妻一个上幼儿园的而孩子,是典型的现代三世同堂的一个家庭结构。
原始户型有三个卧室,分别作为主卧 老人房 儿童房。

主卧有个单独的卫生间,但整体空间在满足正常的衣柜 床 最基本的功能外空间显得局促,将原来卫生间的门做了一个斜角的处理,不管上视觉上主卧空间显大了很多,整个进出的动线也更加流程。

因为老人生活习惯问题东西较多,利用飘出去的阳台做了一做储物柜,满足了老人日常储物需求。

儿童房的空间不大,通过全屋定制也实现了孩子休息、储物 、学习各方面的需求。
餐厅采用卡座的形式,使餐厅的过道更为宽敞一些,方便了业主来往生活阳台做家务,业主平时在家用餐不多,餐桌也可以作为工作桌来使用。
厨房借用两边的垛子做了向两边推拉的移门,完美实现了餐厨空间的独立和开发的随机切换,长虹玻璃的门扇也让餐厨空间多了很多装饰性。
 
客厅电视背景墙以点线面的形式构成让整个空间显得特别干净利落。再加上全屋灰白木的空间配色,给人一种简约舒适的感觉,空间的氛围整个明媚起来。
已有345623人成功取得报价