立即预约设计师:

您已预约成功,我们会在24小时内与您取得联系。感谢您关注居然乐屋装饰,祝您生活愉快!
专业设计师为您量身定制

免费获取装修报价

杨小红 东城区胡同现代简约120平米以下
| 楼盘名称:东城区胡同 | 案例风格:现代简约 | 案例户型:一居/两居 |
| 户型面积:120平米以下 | 造价:1.00 | 所在城市: |
| 服务店面:北四环二店 | 设计师:杨小红 | 施工工长:某 |
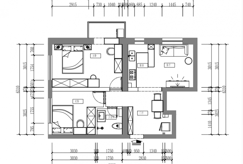
所在小区:东城区北总部胡同
建筑面积:69㎡
户型:两室一厅一厨一卫
风格:现代简约
工程造价:半包8.5万
户型优点:
设计思路:业主是一对年轻夫妇,因为平时工作忙,对于卫生间和客厅的使用频率较高。
房子原本的卫生间较小,借用一部分次卧空间增加卫生间的空间,同时也不影响次卧最基本的休息储物办公的功能。

原来房子客厅面积较小 将厨房和客厅中间的墙体打掉,打造出一个开放式厨房,不知视觉效果整体空间显得更加宽敞,也可以让男主人和女主人在忙完一整天的工作在家里做饭的时候可以更好的互动。

主卧有个南向阳台,离厨房较近,借用厨房的下水在阳台处做了一个小的家政区,大大方便了女主人的脏衣服收纳和洗衣。也解放了卫生间区域,让卫生间用起来更加方便。

简约风格经久耐看,整屋以白色调为主,整个空间显得特别干净。厨房墙体打通后整个空间更加通透明亮。

所用主材品牌:
瓷砖:依诺 橱柜:欧派 洁具:惠达 木门:tata 衣柜:飞美
已有345623人成功取得报价