立即预约设计师:

您已预约成功,我们会在24小时内与您取得联系。感谢您关注居然乐屋装饰,祝您生活愉快!
专业设计师为您量身定制

免费获取装修报价

高尚-金科王府新中式181~320平米
| 楼盘名称:金科王府 | 案例风格:新中式 | 案例户型:别墅 | 
| 户型面积:181~320平米 | 造价:1500000.00 | 所在城市: | 
| 服务店面:玉泉营店 | 设计师:高尚 | 施工工长:某 | 
小区名称: 金科王府
建筑面积:288㎡
户型:别墅 3室3厅3卫
风格定位:现代轻奢
装修方式:个性化
装修花费:软装20万 硬装150万
设计理念:设计以人为本,设计源于生活。
客户要求:两口人居住,储物空间要大,要有衣帽间,主人的起居室要有私密空间。宠物很多,不能有开放式格子的柜子,宠物游乐园要有。要有老人房,但老人房要分开不能打扰。
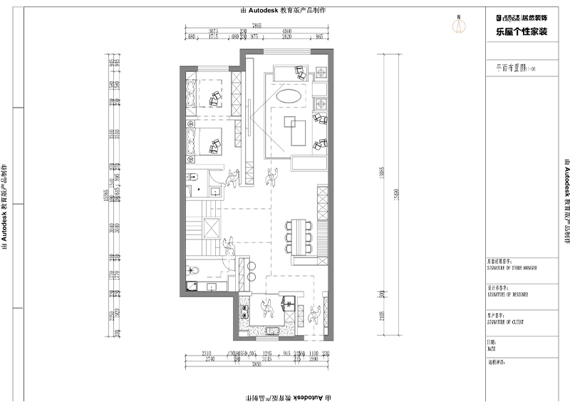
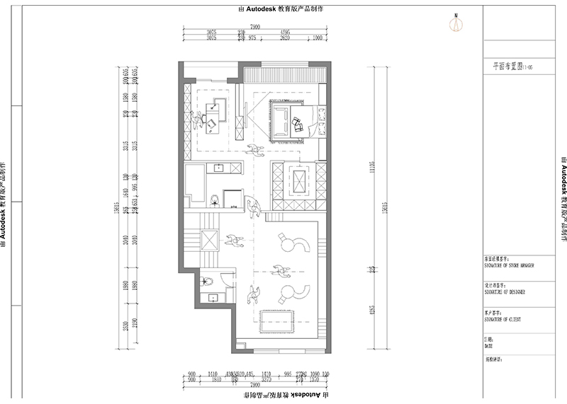
户型分析:
户型优势:每个使用空间都很大,很宽敞。
设计亮点;可拆改的空间还是很大的。
改进方案:二层起居室空间很大,主人房的空间太小,主卫的空间也很小,一些要求是满足不了主人的需求。

一层原始户型图

一层平面布置图



一层客厅

一层餐厅

二层原始户型图

二层平面布局图


已有345623人成功取得报价