立即预约设计师:

您已预约成功,我们会在24小时内与您取得联系。感谢您关注居然乐屋装饰,祝您生活愉快!
专业设计师为您量身定制

免费获取装修报价

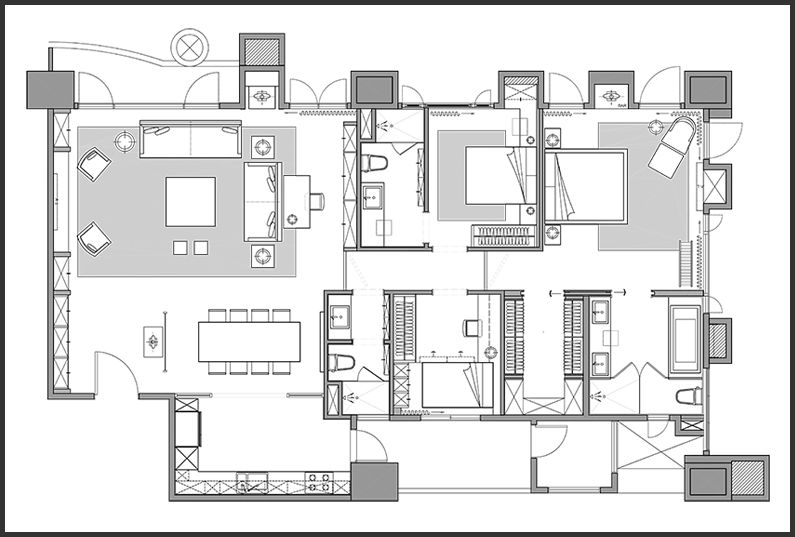
钓鱼台家园-【含蓄东方韵】新中式181~320平米
| 楼盘名称:钓鱼台家园 | 案例风格:新中式 | 案例户型:一居/两居 | 
| 户型面积:181~320平米 | 造价:1050000.00 | 所在城市: | 
| 服务店面:北四环店 | 设计师:张更 | 施工工长:某 | 
工程地址:北京市西城区钓鱼台家园
户型:三居室
面积:220平米(建筑)新房
工程造价:105万
施工项目类型:个性化(清工辅料)
业主基本需求:
客户是三口之家的改善性住宅,需要较强的中式经典韵味,以及注重学习阅读空间。
施工亮点解析:
氛围营造经典现代的东方韵味。
设计亮点解析:
本案在和客户充分沟通后,帮助客户梳理、整合、提炼设计主题,由于含蓄、儒雅的文化氛围。因此,【含蓄东方韵】成为了本案的主题。
该案是一个高品质居住区,房屋结构为框架结构,人口结构为三口之家,主要为改善性需求。居住者从事文化教育事业,给人的感受温文尔雅。根据客户的需求,风格设定为现代温馨、含蓄典雅、东方韵味。
本案主要从色彩方面来体现主题,把色彩的节奏控制的非常严谨,让每个色彩过渡都很和谐自然,从而保证了空间的和谐性,再用大面积的复合色来体现东方含蓄、典雅、内敛的气质。在结构处理上主要以宽大、厚重、饱满的处理手法来表现东方风格的厚重、饱满、底蕴的味道。这样的空间给人带来一种安静、含蓄、儒雅的感受,静静的享受生活,品味生活。
已有345623人成功取得报价